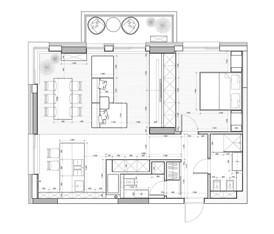
平面图▽
现代的黑色家居有着强烈的个人风格表现力,室内设计中把黑色用得好,不仅有个性、酷帅,更能凸显出高级感。

优雅线条勾勒的黑色护墙板包围这个空间,却不显沉闷,是因为有了灯光的加入,高贵感骤增。
空间不大,但设计有心,注重细节,每一个小点缀都是不经意间撩拨着我们的眼球。黑白灰,最是相配,极简带来的极美。
在大面积落地窗和合理光源照亮的卧室,黑色不会压抑,告别了千篇一律的生活,更有格调的装饰才能更好的彰显自己的个性与追求。


卫生间黑白灰的绝妙搭配,从凝重的黑到轻盈的白,空间似乎都逐渐舒展开来一般。看似明亮张扬,但却依旧有所收敛,这可能就是高级黑的迷人之处了。

PROJECT TEAM
Z.Design architecture,由Роман Зуб和Valentina Praslova创建,设计新颖,舒适且独特,非常现代。保守的极简主义和精致色彩组合,形式和色彩的禁欲主义。


